Die Innovationen des Entwurfs auf einen Blick
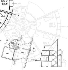
Grundriss im Kreisraster
Vorteile:
- maximale Wohnfläche bei minimaler Gebäudehülle
- standardisierte Bauteile
- Variabilität durch Schließen oder Öffnen des
Fächers
Runder Treppenhauskern
Vorteil: Als Massivabsorber und Klimapuffer nutzbar.
Straße im Kellergeschoß (natürlich belüftet über Öffnungen)
Vorteile:
- Weniger Baulandverbrauch
- reduzierte Straßenbaukosten
- geringerer Straßenverschleiß
- vereinfachte Führung und Wartung der Versorgungsleitungen (unter
Decke gehängt)
- verminderte Oberflächenversiegelung bei mehr Grünflächen
- kindergerechtes Wohnumfeld
- Häuser direkt anfahrbar